City of Mara – M13 Sport

Downloadează Proiect
Descriere proiect

Propunere sală de sport în cadrul ansamblului City of Mara

Locație

Timișoara, Romania

Client

City of Mara Development

Arhitectură

ATG Studio

An finalizare

Suprafață

5500 m²

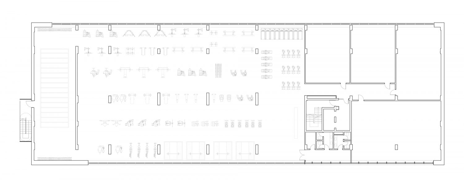
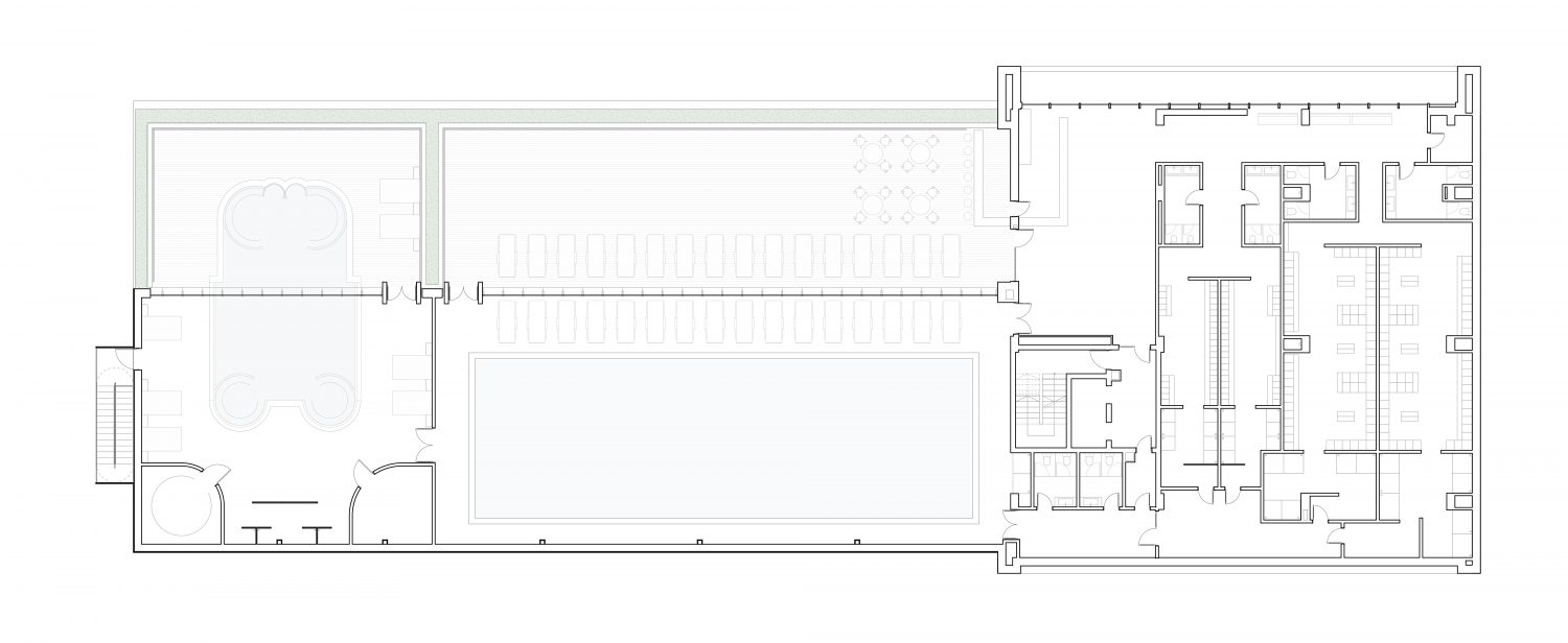
M13 Sport este un proiect din cadrul ansamblului rezidențial City of Mara, proiect cu o importanță ridicată, deoarece susține ideea întregului ansamblu de fi mai mult decât doar un cartier rezidențial.

Sala de sport propusă deservește atât ansamblul City of Mara, cât și cartierele din proximitate.

Din punct de vedere funcțional, am propus o cafenea, cu zone vitrate generoase, orientate spre parc, o sală de fitness și diverse spații pentru activități sportive de grup (cycling, yoga, aerobic etc.), iar la ultimul nivel o terasă verde pentru activități sportive în aer liber. Aspectul cel mai important al acestei propuneri este pista de alergare interioară, care înconjoară toate sălile, existând relații vizuale între pistă și activitățile din interiorul sălilor, respectiv pistă-exterior. În acest sens, am propus o serie de console vitrare, gândite ca zone de repaus, orientate spre puncte cheie ale ansamblului sau împrejurimilor.


Copyright © 2019 ATG Studio S.R.L.
Contact

Email: office@atgstudio.ro
Mobil: 0748013978
Fix & fax:

Adresă Studio

Splaiul Nistrului, nr. 1, etaj 1
Timișoara, Romania
Cod Poștal: 300092

Privacy Settings
We use cookies to enhance your experience while using our website. If you are using our Services via a browser you can restrict, block or remove cookies through your web browser settings. We also use content and scripts from third parties that may use tracking technologies. You can selectively provide your consent below to allow such third party embeds. For complete information about the cookies we use, data we collect and how we process them, please check our Privacy Policy
Youtube
Consent to display content from Youtube
Vimeo
Consent to display content from Vimeo
Google Maps
Consent to display content from Google